La Pierre Aixoise Agence
Télécharger la fiche
Exclusivité Prix en baisse

Murs commerciaux 3 pièce(s) 253.4 m²

Vitrolles (13127)
399 000 € TTC* * TTC : Toutes Taxes Comprises Référence Gr1

A propos de ce bien

Murs de restaurant de 250m² sur un terrain de 1742m², situé au Griffon à Vitrolles, dans une zone dynamique .

Emplacement dominant et très visible d'un axe passant, proximité avec de nombreuses entreprises. (Siège de société et zone commerciale IKEA, Carrefour etc)

Le local est composé de trois salles, une grande terrasse (plus de 150m²), une cuisine, 4 wc; chambre froide, un vestiaire et 18 Places de Parking + une pour les personnes à mobilité réduite.

Capacité de 200 Couverts.

Actuellement loué par un bail commercial, Loyer 2768 HC

Taxe Foncière : 5048€ / An à la charge du locataire

Prix : 399.000€ TTC Honoraires Charge Vendeur Inclus

Rentabilité brute au dela de 8%

Les informations sur les risques auxquels ce bien est exposé sont disponibles sur le site Géorisques


Les informations sur les risques auxquels ce bien est exposé sont disponibles sur le site Géorisques

Caractéristiques de ce bien

Activités

  • Type de transaction Murs commerciaux

Agencement

  • Superficie m2 253,40 m²
  • Nombre de pièces 3

Equipements

  • Chauffage individuel : air pulsé (climatisation)

Secteur

  • Code postal 13127
  • Ville Vitrolles

Diagnostics & compléments

  • Risques natures et techniques OUI

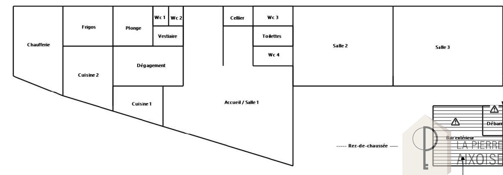
Composition du bien

Rez-de-chaussée

  • accueil 70.63 m²
  • Dégagement 5.73 m²
  • Cuisine 1 16.50 m²
  • Cuisine 2 8.27 m²
  • chambre froide 8.71 m²
  • Plonge 6.51 m²
  • vestiaire 2.14 m²
  • WC 1.01 m²
  • WC 1.01 m²
  • Cellier 1.94 m²
  • Toilettes 2.39 m²
  • WC 3.20 m²
  • WC 1.35 m²
  • salle 65.57 m²
  • salle 32.35 m²
  • Chaufferie 4.44 m²
  • réserve 21.65 m²

Diagnostics énergétiques

Consommation énergétique
A B C D E F G
Emission de gaz à effet de serre
A B C D E F G

Logement à consommation énergétique excessive : classe F

Montant estimé des dépenses annuelles d'énergie pour un usage standard est compris entre 6 010 € et 8 140 € . Prix moyens des énergies indexés sur les années 2021, 2022 et 2023 (abonnements compris).

Informations financières

Prix de vente TTC honoraires inclus 399 000 €
Les honoraires d'agence seront intégralement à la charge du vendeur  
TRAD_DETAIL_infosfi_DEFAULT_ChargesAnnonceTTC 422 €
Bail Commercial
Echéance du bail 2021-01-01
Loyer 2 768 € / mois

Autour du bien

  • Commerces et santé
  • Loisirs
  • Ecoles
  • Transports
  • Pratique

Calcul des mensualités

* Champs obligatoires