Roy KUHN Négociateur
Télécharger la fiche

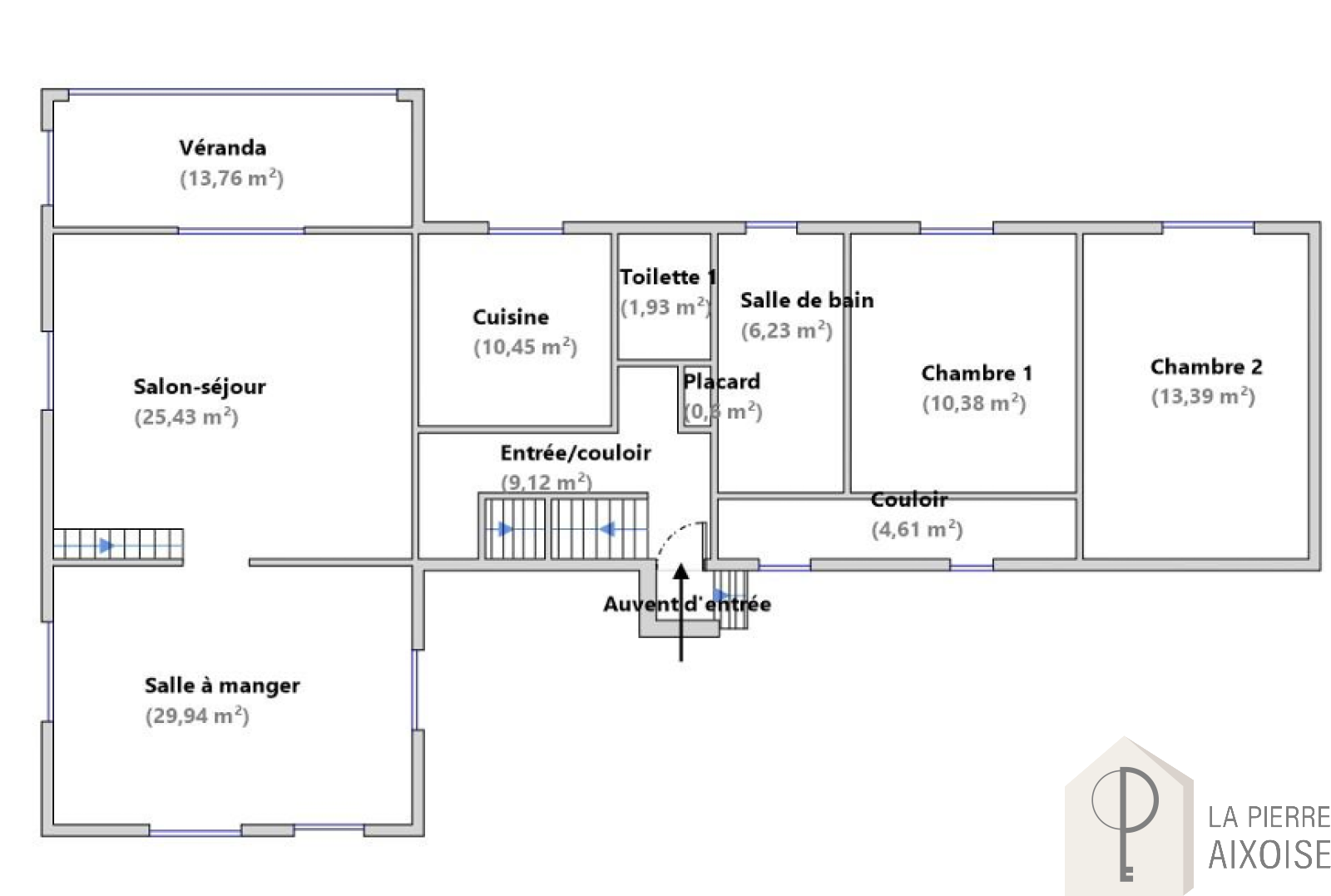
Maison 6 pièce(s) 3 chambre(s) 132.34 m²

Châteauneuf-le-Rouge (13790)
577 500 € Référence V20000182

A propos de ce bien

Au pied de la sainte Victoire, une Propriété de 132m² exposée plein sud surplombant un jardin arboré avec piscine le tout sur 1500m²

Cette maison de Type6 offre un cadre calme et verdoyant., ainsi que 3 chambres de nombreuses pièces de vie idéale pour une famille nombreuse ou pour un projet de modernisation.

Beaucoup de potentiel.

Taxe foncière 2036€. Prix 577 500 € Honoraires charge vendeur

DPE: Classe Energie E Classe Climat B Mandat N°84

Roy KUHN 07 69 96 35 69 // RSAC 887 681 005 00021


Zone soumise à une obligation légale de débroussaillement.
Les informations sur les risques auxquels ce bien est exposé sont disponibles sur le site Géorisques

Caractéristiques de ce bien

  • Surface 132,34 m²
  • terrain 1 500 m²
  • séjour 25,97 m²
  • 3 chambre(s)
  • 1 salle(s) de bain
  • 1 salle(s) d'eau
  • cuisine séparée
  • Chauffage individuel : cheminée (bois)
  • Chauffage individuel : poêle (granules)
  • Chauffage individuel : convecteur (electrique)
  • 1 garage(s)
  • exposition Nord-Sud
  • 1 niveau(x)
  • terrasse

Diagnostics énergétiques

Consommation énergétique
A B C D E F G
Emission de gaz à effet de serre
A B C D E F G

Montant estimé des dépenses annuelles d'énergie pour un usage standard est compris entre 2 740 € et 3 750 € . Prix moyens des énergies indexés sur les années 2021, 2022 et 2023 (abonnements compris).

Informations financières

Prix de vente 577 500 € Les honoraires d'agence seront intégralement à la charge du vendeur
Taxe foncière annuelle 2 036 €

Autour du bien

  • Commerces et santé
  • Loisirs
  • Ecoles
  • Transports
  • Pratique

Calcul des mensualités

* Champs obligatoires